热搜词
资讯
考试报名
准考证
考试动态
成绩查询
证书查询
合格标准
试题
历年真题
模拟试题
易错题
魔考答疑
资料
考试教材
考试大纲
考试讲义
专题
考试流程
科技专题
法律大全
法律
行政法规
国务院文件
司法解释
部门规章
规范性文件
切换考试
一级建造师
二级建造师
一级造价师
二级造价师
监理工程师
消防工程师
微信扫一扫
微信
搜索
登录
咨询客服
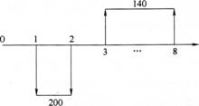
【某投资方案各年的净现金流量如下图所示,试计算该方案财务净现值为( )】
# 模拟试题
2019-10-17 10:11
来源:
魔考大师
某投资方案各年的净现金流量如下图所示,试计算该方案财务净现值为( ),并判断方案的可行性为( )。(iC=1O)
A.63.72万元,方案不可行
B.128.73万元,方案可行
C.156.81万元,方案可行
D.440.00万元,方案可行
C
该技术方案的净现值为:NPV=-200(P/A,10%,2)+140(P/A,10%,6)(P/F,10%,2)=156.81万元,方案可行。
相关文章
随机推荐文章
在防盗报警系统中,( )十分适合于远距离的线控报警装置。
【应用预算单价法编制施工图预算时,在套用定额单价后,紧接的工作是( )】
通过计时观察资料得知:人工挖二类土1m3的基本工作时间为6小
对不满足承载力要求的松散砂和砂砾石地层可采用的处理措施不包括
【某企业发行普通股正常市价为58元,估计年增长率为15%,第一年预计发放股利2】
造价管理练习题:招投标过程中,如果投标人或者其他利害关系人认
使用酸性焊条焊接时,对其药皮作用表述正确的为( )。
热门标签
一级造价工程师的考试报名步骤
一级造价报考流程详解流程图
一级造价计价的考试大纲
一级造价工程师管理考试大纲
一级造价工程师考试大纲汇总
山西
内蒙古
黑龙江
吉林
辽宁
海南
广西
广东
安徽
江西